分类分类
更新时间:2025-10-28 08:45:22作者:fang
本文实例为大家介绍了基于javascript实现放大镜效果的原理和代码,分享给大家供大家参考,具体内容如下:
原理:
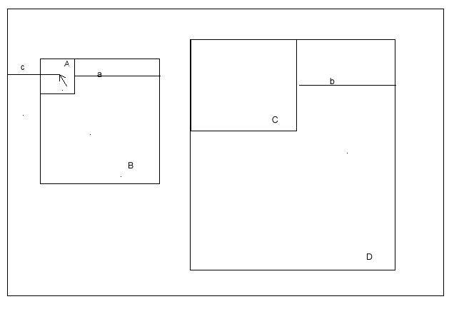
A:放大镜 B:小图片
C:大图片可视区域
D:大图片
鼠标的位置应该在放大镜的中央,所以鼠标位置为:
clientX=A.offsetLeft()+B.offsetLeft+1/2*A.offsetWidth;
clientY=A.offsetTop()+B.offsetTop+1/2*A.offsetHeight;
鼠标移动过程中:放大镜A和大图D是一起随鼠标成比例运动的,因为当放大镜A的右边框移动到与小图B的右边框重合时,大图D也应该移动到了右边框与C的右边框重合的地方,所以,他们的移动比例是:(D.offsetWidth-C.offsetWidth)/(B.offsetWidth-A.offsetWidth)=b/a

HTML部分:
<html>
<head>
<meta http-equiv="Content-Type" content="text/html; charset=UTF-8" />
<title>放大镜效果</title>
<style>
*{
margin:0;
padding:0;
}
#demo{
position: relative;
margin:30px 50px;
width: 1000px;
height: 600px;
border: 1px solid #000;
}
#zhezhao{
position: absolute;
z-index:2;
background:red;
width:402px;
height:402px;
left: 20px;
top:20px;
opacity: 0;
}
#small{
position: absolute;
width:402px;
height:402px;
left: 20px;
top:20px;
border: 1px solid #000;
z-index: 1;
}
#small img{
position: absolute;
}
#big{
position: relative;
top: 20px;
left: 460px;
width:500px;
height:500px;
border: 1px solid #000;
overflow: hidden;
display: none;
z-index: 1;
}
#big img{
position: absolute;
}
#glass{
position: absolute;
width:100px;
height: 100px;
opacity: 0.3;
background:orange;
display: none;
}
</style>
</head>
<body>
<div id='demo'>
<div id='zhezhao'> </div>
<!-- 在ie浏览器中,当鼠标在放大镜上是,浏览器并不认为鼠标同样在小图的div上,所以加个遮罩层 兼容ie-->
<div id='small'>
<img src='images/small.png' alt=''>
<div id='glass'></div>
</div>
<div id='big'>
<img src='images/big.jpg' alt='' >
</div>
</div>
</body>
</html>
js部分:
<script>
window.onload=function(){
var demo =document.getElementById('demo');
var small =document.getElementById('small');
var big =document.getElementById('big');
var glass =document.getElementById('glass')
var image =document.getElementById('big').getElementsByTagName('img')[0];
var zhezhao=document.getElementById('zhezhao');
zhezhao.onmouseover=function(){
glass.style.display='block'
big.style.display='block'
}
zhezhao.onmouseout=function(){
glass.style.display='none'
big.style.display='none'
}
//弄清楚clientX,offsetLeft,left的关系,注意区分
zhezhao.onmousemove=function(ev){
var event=ev
var left=event.clientX-demo.offsetLeft-small.offsetLeft-glass.offsetWidth/2;
var top =event.clientY-demo.offsetTop -small.offsetTop -glass.offsetHeight/2;
if(left<0){
left=0;
}else if(left>(small.offsetWidth-glass.offsetWidth)){
left=small.offsetWidth-glass.offsetWidth
}
if(top<0){
top=0;
}else if(top>(small.offsetHeight- glass.offsetHeight)){
top=small.offsetHeight- glass.offsetHeight
}
glass.style.left =left+'px';
glass.style.top =top+'px';
var percent=(image.offsetWidth-big.offsetWidth)/(small.offsetWidth-glass.offsetWidth)
image.style.left=-percent*left+'px'
image.style.top =-percent*top+'px'
}
}
</script>
以上就是本文的全部内容,希望对大家实现javascript放大镜效果有所帮助。
相关